0
fr
Christophe DEVAUCHELLE Négociateur
Télécharger la fiche

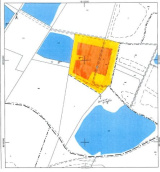
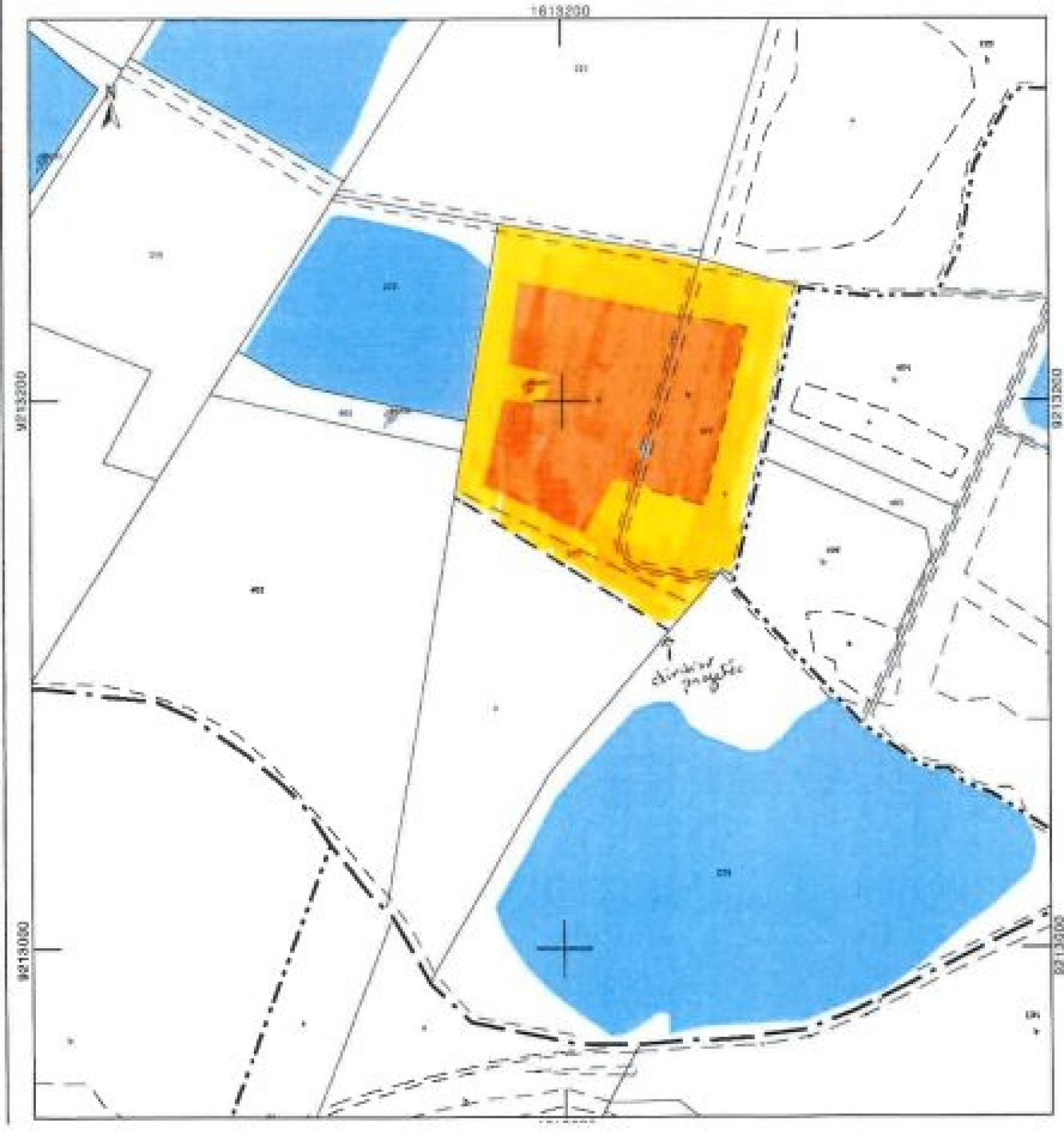
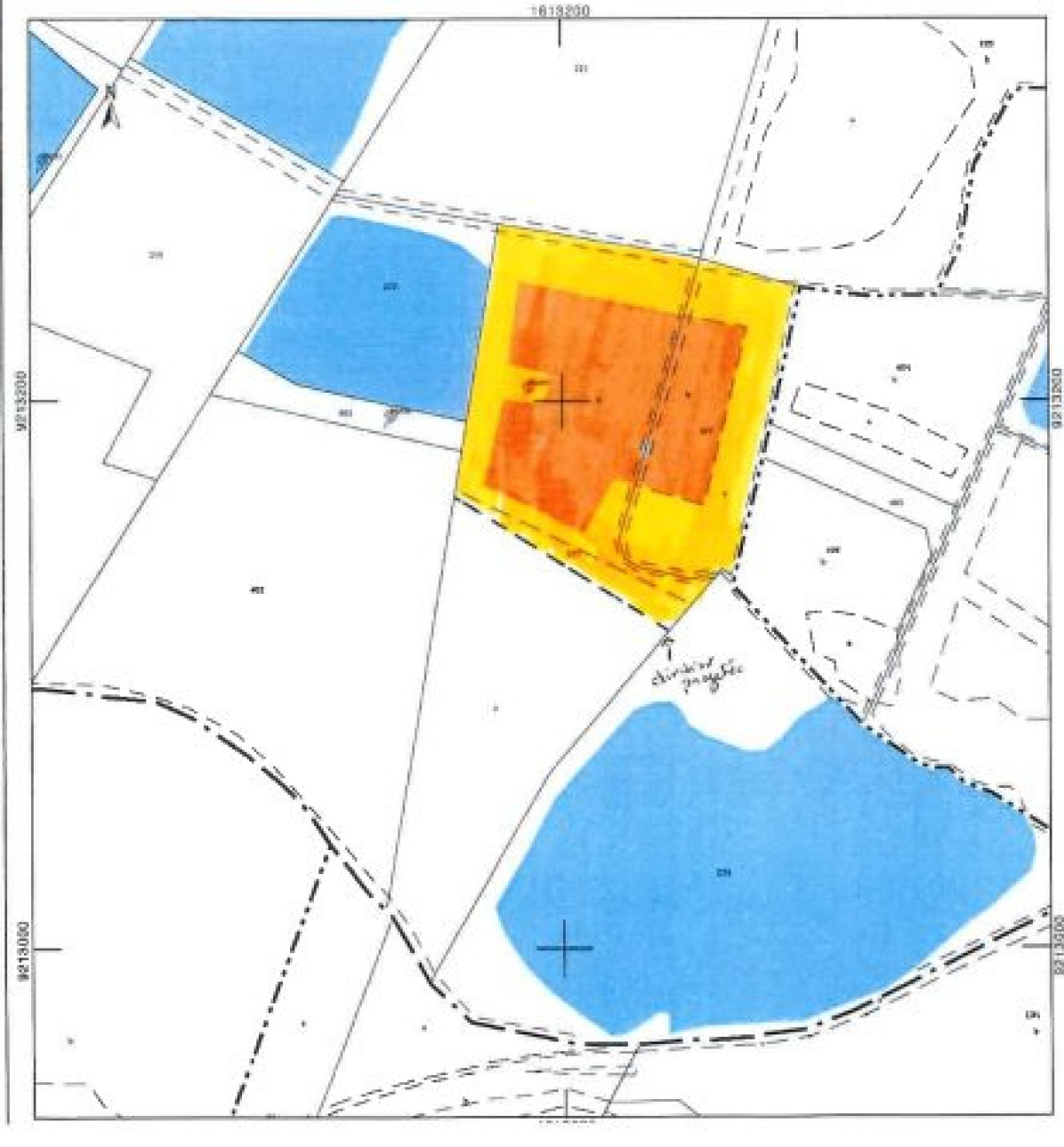
Terrain 12753 m² 12753 m²

Cambron (80132)
86 000 € Référence VT101

A propos de ce bien

L'agence PLACE DE L'IMMO, vous propose sur la commune de CAMBRON : Un terrain d'environ 12 000m² avec étang de 8000m² ainsi qu'une hutte immatriculée. (attestation fournie) Pour plus de renseignements, n'hésitez pas à contacter l'agence.

Caractéristiques de ce bien

  • terrain 1,28 ha

Informations financières

Prix de vente 86 000 € Les honoraires d'agence seront intégralement à la charge du vendeur

Calcul des mensualités

* Champs obligatoires